EN

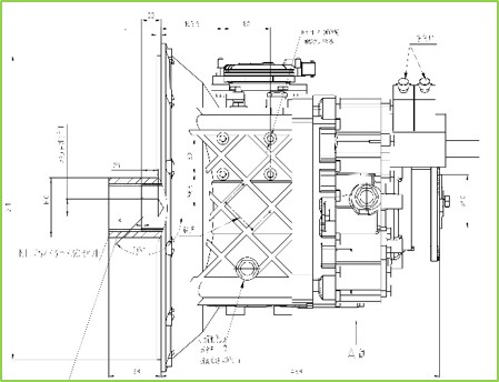
定轴式-2D4210两档变速器

产品简介:

适用于10米以上大中型新能源客车

•2个前进档

 

•前进档均采用结合套换挡;

 

 

 

 

 

 

主要技术参数

变速器型号

2D4210

额定输入扭矩

4200N.m

质量(不含附加装置及油)

160kg

润滑油等级

SAE80W/90 orAPI-GL-4

润滑油量

4L

安装方式

卧式

 

 

档位传动比

档位

一档

二挡

传动档1

3.43

1

友情链接 ×